±¿¤Ù¤ëÃÖ¤­°Ïϧ΢¡¡CHIRORI/4646

±¿¤Ù¤ë°Ïϧ΢
CHIRORI / 4646


CR-4646



±«¤ÎÆü¤â¡¢À²¤ì¤ÎÆü¤â¡¢±¿¤Ù¤ë°Ïϧ΢


À½ÉʾҲð



±«¤ÎÆü¤â

±¿¤Ù¤ë°Ïϧ΢¤òÏÂÉ÷¤Î¼¼Æâ¤Ç»ÈÍѤ·¤Æ¤¤¤ë²èÁü

ú²Ð¤Ç



±¿¤Ù¤ë°Ïϧ΢¤Ç¸Ç·ÁdzÎÁ¤ò»È¤Ã¤Æ¤¤¤ë²èÁü

¸Ç·ÁdzÎÁ¤Ç


±¿¤Ù¤ë°Ïϧ΢¤Ç¥¢¥ë¥³¡¼¥ëdzÎÁ¤ò»È¤Ã¤Æ¤¤¤ë²èÁü

dzÎÁ¥¢¥ë¥³¡¼¥ë¤Ç


±¿¤Ù¤ë°Ïϧ΢ÍÑ¤Î¸ÞÆÁ¤ò»È¤Ã¤ÆÅ´ÉÓ¤òʨ¤«¤·¤Æ¤¤¤ë²èÁü

ÃÖ¤¯¤À¤±¡ª¤ª¤¦¤Á¤Ç°Ïϧ΢
É÷¾ð¤ò³Ú¤·¤àÅ´ÉÓ¤ÇÅòʨ¤«¤·¡£


±¿¤Ù¤ë°Ïϧ΢¤ÇÆé¤ÈÇ®ßó¤òºî¤Ã¤Æ¤¤¤ë²èÁü

ÅòƦÉå¡¡Ç®ßó
ÅߤˤÏÅòƦÉå¤ÈÇ®ßó¤Ç»êÊ¡¤Î¤Ò¤È»þ¡£
¤ª¤¦¤Á»þ´Ö¤ò³Ú¤·¤ß¤Þ¤·¤ç¤¦¡£


À²¤ì¤ÎÆü¤â

±¿¤Ù¤ë°Ïϧ΢¤Ç¶ú¾Æ¤­¤ò¤·¤Æ¤¤¤ë²èÁü

ú²Ð¤Ç



Ìë´Ö¤ËÌî³°¤Ç±¿¤Ù¤ë°Ïϧ΢¾å¤Çʲ²Ð¤ò¤·¤Æ¤¤¤ë²èÁü

ʲ²Ð¤Ç


Äí¤«¤é²°³°¥­¥ã¥ó¥×¤Þ¤Ç¤¹¤°¤Ë±¿¤Ù¤ë

Ìî³°¥Æ¡¼¥Ö¥ë¤Î¾å¤Ë±¿¤Ù¤ë°Ïϧ΢¤òÃÖ¤¤¤Æ¤¤¤ë²èÁü

¤ª¤¦¤Á¥­¥ã¥ó¥×¡¢Äí¥­¥ã¥ó¥×¤Ç¡ª


±¿¤Ù¤ë°Ïϧ΢¤Ç¾ÆÆù¤ò¤·¤Æ¤¤¤ë²èÁü

¤â¤Á¤í¤óÌ־Ƥ­¤â¡£


±¿¤Ù¤ë°Ïϧ΢¤ÇÆé¤ä¾Æ¤­Ä»¡¢Ì־Ƥ­¤ò

¶ú¾Æ¤­¡¢Ì־Ƥ­¡¢Æé¤â¤Î¡¢ßó¼ò¡¦¡¦¡¦
¤µ¤Þ¤¶¤Þ¤ÊÁȤ߹ç¤ï¤»¤Ç³Ú¤·¤á¤ë¡ª


ÀâÌÀ

ÉÕ°¤ÎÃʥܡ¼¥ëÈ¢¡Ê¥Ù¥ë¥ÈÉÕ¤­¡Ë¤ËÆþ¤ì¤Æ±¿¤Ù¤Þ¤¹¡£


ÀâÌÀ

¼«Ê¬¤Ç¾Æ¤¯¤È¶Ã¤­¤Î³Ú¤·¤µ¡ª
¤¯¤ë¤¯¤ë²ó¤·¤Æ¡¢Ãº²Ð¶ú¾Æ¤­¤Î¤¿¤Î¤·¤µ¤Ï¤ä¤ß¤Ä¤­¤Ë¡£

ÀâÌÀ

ú²Ð¤Ç¾Æ¤¯¤È¶Ã¤­¤ÎÈþÌ£¤·¤µ¡ª
ú²Ð¤ÎÀÖ³°Àþ¤Èßî±ì¸ú²Ì¤Ç¤Þ¤¹¤Þ¤¹ÈþÌ£¤Ë¡ª



£Ì·¿¥Ï¥ó¥¬¡¼¡Ê¼«ºßîì¡Ë
ÉÕ°¤Î£Ì·¿¥Ï¥ó¥¬¡¼¤Ï¡¢²óž¤È¶¦¤Ë¥Á¥§¡¼¥ó¤Ç¹â¤µÄ´À°¤¬²Äǽ¤Ç¤¹¡£
2kgÄøÅÙ¤Þ¤Ç¤ÎÆé¤ä¥±¥È¥ë¤òÄߤ뤹¤³¤È¤¬¤Ç¤­¤Þ¤¹¡£

ÀâÌÀ

ËÜÂÎ2¤«½ê¤Ë¥Ï¥ó¥¬¡¼¤Î¼è¤êÉÕ¤±BASE¤¬¤¢¤ê¡¢
¤É¤Á¤é¤Ë¤Ç¤âÁõÃå¤Ç¤­¤Þ¤¹¡£


ÀâÌÀ

¥µ¡¼¥¯¥ë¥Ï¥ó¥¬¡¼(¥ª¥×¥·¥ç¥ó)¤òÊ»ÍѤǤ­¤Þ¤¹¡£

¼è¤ê³°¤·¤Ç¤­¤ë¡¡¶ú¾Æ¤­¥¹¥¿¥ó¥É
ÉÕ°¤Î¶ú¾Æ¤­¥¹¥¿¥ó¥É¤Ï¡¢º¸±¦¤É¤Á¤é¤ÎÌ̤ˤâ¼è¤êÉÕ¤±¤Ç¤­¤Þ¤¹¡£

ÀâÌÀ

¥ª¥×¥·¥ç¥ó¤ÎÄɲäÇξÊý¸þ¤«¤é¾Æ¤±¤Þ¤¹¡£


ÀâÌÀ

²¼¸þ¤­¤Ë¼è¤êÉÕ¤±¤ë¤È¥È¥ó¥°¤äÃݶú¤¬ÃÖ¤±¤Þ¤¹¡£


ÀâÌÀ

¥Ô¥¿¥Ã¡ª¤È»ß¤Þ¤ë
¿©ºà¤¬²ó¤ê¤¹¤®¤º¥Ô¥¿¥Ã¤È»ß¤Þ¤ê¡¢¾Æ¤­¤¿¤¤Ì̤ò¾Æ¤±¤Þ¤¹¡£


ÀâÌÀ

°¾¤Ï¶ú¤òΩ¤Æ¤Æ¡¢
¤¸¤Ã¤¯¤ê¾Æ¤­¤â¤ª¤¹¤¹¤á¡ª


ÀâÌÀ

¿åÊ¿¤È£´£µÅ٤Σ²Ãʳ¬Ä´À°
¶ú¤Î³ÑÅ٤DzвøºÄ´À°¡£


ÀâÌÀ

Ì־Ƥ­¤â
ÉÕ°¤ÎÃÇÇ®¥ì¥ó¥¬¤òÃÖ¤¤¤Æ¡¢
²Ð²Ã¸º¤òÄ´Àá¤Ç¤­¤Þ¤¹¡£


ÀâÌÀ

Äí¥­¥ã¥ó¥×¤Ç¤â
¾®¤µ¤Ê¿Å¤¬¤¢¤ì¤Ðʲ²Ð¤â¡ª



ú²Ð¤Î¤ªÅ¹¤Ë

ÀâÌÀ

¥Õ¥¿¤ÏÃÇÇ®ÈĤË
¥Õ¥¿¤ÏÃÇÇ®ÈĤȤ·¤Æ¤â¤´»ÈÍѤ¯¤À¤µ¤¤¡£


ÀâÌÀ

¥¹¥¿¥Ã¥­¥ó¥°¼ýǼ
½Å¤Í¤Æ¼ýǼ¤Ç¤­¤Þ¤¹¡£


¡ãËÜÂλÅÍÍ¡ä
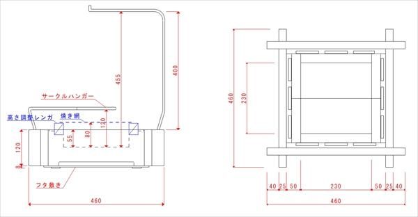
¥µ¥¤¥º¡§³°À£46cm¡ß46cm¡¡¹â¤µ12cm¡Ê¥Õ¥¿¤ò´Þ¤Þ¤º¡Ë
½ÅÎÌ¡§Ìó11kg¡ÊÉÕ°ÉÊ¡¦Ãʥܡ¼¥ëÈ¢´Þ¤à¡Ë
ËÜÂÎÌÚÉô¡§¥¿¥â½¸À®ºà
ÌÚÉôÅÉÁõ¡§¥ª¥¹¥â¥«¥é¡¼¡§¥í¡¼¥º¥¦¥Ã¥É¿§
¡Ê¥É¥¤¥ÄÀ½¤Î°ÂÁ´¤Ê¿¢Êª¥ª¥¤¥ëÅÉÁõ¡Ë
¶âʪ¡§Å´À½
600ÅÙÂÑÇ®¾ÆÉÕ¤±ÅÉÁõ¡Ê¹õ¿§¡Ë
¥ì¥ó¥¬¡§·ÚÎÌÃÇÇ®¥ì¥ó¥¬


¢þ¶õÎä¼°
Ä줫¤éÎ䵤¤ò¼è¤êÆþ¤ì¡¢¾åÉô¤«¤éÇ®µ¤¤òÇӽФ¹¤ëÆÈ¼«¤Î¶õÎä¼°¤Ë¤è¤ê¡¢ÄìÌÌ¡¢Â¦Ì̤β¹Åپ徺¤òËɤ¤¤Ç¤¤¤Þ¤¹¡£

¢þ¥ì¥ó¥¬Éô
¼·ÎØËÜÊޤΥΥ¦¥Ï¥¦¤ò³è¤«¤·¡¢·ÚÎÌÃÇÇ®¥ì¥ó¥¬¤ò»ÈÍÑ¡£¶õµ¤¤ò¿¤¯´Þ¤ß·Ú¤¤¤¿¤á¡¢ÃÇÇ®À­¤¬¹â¤¯¡¢¾¯Î̤Îú²Ð¤Ç¤â¼·ÎؤΤ褦¤Ê¹â¤¤Ç³¾Æ¸úΨ¤òȯ´ø¤·¤Þ¤¹¡£
ÃÇÇ®À­¤Î¤Ê¤¤ÂѲХì¥ó¥¬(SK-¡»¡»¡Ë¤È¤Ï¤Þ¤Ã¤¿¤¯°Û¤Ê¤ë¤â¤Î¤Ç¤¹¡£

¢þÌÚÉô
¢¡¥¿¥â¤Î½¸À®ºà
¥¿¥â¤ÏÌîµå¤Î¥Ð¥Ã¥È¤Ë»È¤ï¤ì¤ë¹Å¤¤¹­ÍÕ¼ù¤Ç¥­¥º¤ä±ú¤ß¤Ë¶¯¤¯´è¾æ¤Ç¤¹¡£
¤³¤Á¤é¤Ï¥¿¥â¤Î¾®¤µ¤Ê¥Ö¥í¥Ã¥¯¤ò½¸À®¤µ¤»¤¿¤â¤Î¤Ç¡¢Ìµ¹¤ºà¤ËÈæ¤ÙÈ¿¤ê¤ä¤Ò¤Ó³ä¤ì¤¬¤ª¤³¤ê¤Ë¤¯¤¤¤Ç¤¹¡£

¢¡°ÂÁ´¤Ê¿¢ÊªÌýÅÉÁõ
¥É¥¤¥ÄÀ½¤Î°ÂÁ´¤Ê¥ª¥¤¥ë·ÏÅÉÎÁ¡¢¥ª¥¹¥â¥«¥é¡¼¡Ê¥í¡¼¥º¥¦¥Ã¥É¿§¡Ë¤ò»ÈÍѤ·¤Æ¤¤¤Þ¤¹¡£
Í­³²¤Ê²½³ØÊª¼Á¤ò´Þ¤Þ¤Ê¤¤¿¢ÊªÌý¤ò¥¿¥âºà¤Ë¿»Æ©¤µ¤»¤Æ¡¢ËÜÍè¤Î¼ê¿¨¤ê¤ò»Ä¤·¤¿¤Þ¤ÞÌÚ¤ÎɽÌÌ¤ÈÆâ¦¤«¤éÊݸ¤Æ¤¤¤Þ¤¹¡£
¥Ú¥ó¥­¤ä¥Ë¥¹¤Î¤è¤¦¤ËÌڤθƵۤò˸¤²¤Ê¤¤¤¿¤á¡¢²ÃÇ®¤Ë¤è¤ëÌÚÆâÉô¤Ç¤Î¶õµ¤¤Î¿­½Ì¤Ë¤â¶¯¤¯Ùû¿åÀ­¤â¤¢¤ê¤Þ¤¹¡£
¤Þ¤¿¡¢¥µ¥ó¥É¥Ú¡¼¥Ñ¡¼¤ò¤«¤±¤ÆÉôʬŪ¤ËºÆÅÉÁõ¤¹¤ì¤ÐÊ佤¤¹¤ë¤³¤È¤â¤Ç¤­¤Þ¤¹¡£

¢þ¹õ¤¤¶â°Éôʬ
¢¡Å´Ï§¡Ê¤Æ¤Ä¤í¡Ë
Å´À½¤ÎÈ¢¤Ë600Å٤ιõ¿§ÂÑÇ®ÅÉÁõ¤ò»Ü¤·¤Æ¤¤¤Þ¤¹¡£
Ç®¤¬²Ã¤ï¤Ã¤Æ¤â°ìÈÌŪ¤ÊÅÉÁõ¤Î¤è¤¦¤Ë¡¢¥Ý¥í¥Ý¥í¤ÈÇí¤¬¤ìÍî¤Á¤ë¤³¤È¤¬¤¢¤ê¤Þ¤»¤ó¡£


¤´¹ØÆþÁ°¤Ë¤´³Îǧ¤¯¤À¤µ¤¤¡£
¡»ÀßÃÖÌ̤β¹Å٤ˤĤ¤¤Æ
Ç®¤Ë¼å¤¤¥Æ¡¼¥Ö¥ë¡¢¥Ó¥Ë¡¼¥ë¥·¡¼¥È¾å¤ä¥Ç¥ê¥±¡¼¥È¤ÊÅÉÁõÌ̤ǤϤ´»ÈÍѤ¤¤¿¤À¤±¤Þ¤»¤ó¡£
Ĺ»þ´Ö¹â²ÐÎϤǻÈÍѤ¹¤ë¤È¡¢ÀßÃÖÌ̤¬50Åٰʾå¤Ë¤Ê¤ë¤³¤È¤â¤¢¤ê¡¢ÊÑ·Á¡¢ÊѼÁ¡¢ÊÑ¿§¤Î¸¶°ø¤È¤Ê¤ê¤Þ¤¹¡£

¡»ÃÇÇ®¥ì¥ó¥¬¤ÎÎô²½¡¢±ø¤ì¤Ë¤Ä¤¤¤Æ
ÃÇÇ®¥ì¥ó¥¬¤ÏĹ´ü»ÈÍѤˤª¤¤¤Æ¡¢¤Ò¤Ó³ä¤ì¡¢¥«¥±¡¢ËàÌפ¬¤¢¤ê¤Þ¤¹¡£
¤Þ¤¿¿©ºà¡¦Ìý¤Ê¤É¤Î±ø¤ì¤¬ÉÕÃ夷¡¢¿»Æ©¤·¤¿±ø¤ì¤ÏÍî¤Á¤Þ¤»¤ó¡£

¡»ÌÚÉô¤ÎÎô²½¤Ë¤Ä¤¤¤Æ
²¹ÅÙ¡¦¼¾ÅÙ¤ÎÊѲ½¤Ë¤è¤ê¿­½Ì¤¬¤¢¤ê¡¢Ä¹´ü»ÈÍѤˤª¤¤¤Æ¤Ò¤Ó³ä¤ì¤ä¤Ä¤Ê¤®Ìܤηä´Ö¤¬ÌÜΩ¤Ã¤Æ¤¯¤ë¤³¤È¤¬¤¢¤ê¤Þ¤¹¡£

¡»±¿È¡¦ÊÝ´É»þ¤Î¤´Ãí°Õ
ËÜÉʤò΢¸þ¤±¤¿¤ê¡¢Î©¤Æ¤«¤±¤¿¤ê¤¹¤ë¤ÈÃÇÇ®¥ì¥ó¥¬¤¬ÇË»¤·¤ä¤¹¤¯¤Ê¤ê¤Þ¤¹¡£
ÆÃ¤Ë¼Ö¤Ê¤É¤Ç¤Î±¿È»þ¤Ï¿¶Æ°¤Ë¤è¤ëÇË»¤¬¤ª¤³¤ê¤ä¤¹¤¯¤Ê¤ê¤Þ¤¹¡£



¡¡CR-4646S
¡¡¡¡¡¡¡¡¡¡¡¡¡¡¡¡¡¡¡¡CHIRORI/4646 ¥»¥Ã¥È(7ÅÀ)

¢¨¥ì¥ó¥¬¤Î¿§¤Ï¤³¤Î¼Ì¿¿¤Î¤è¤¦¤Ë¥°¥ì¡¼¿§¤ËÊѤï¤Ã¤Æ¤¤¤Þ¤¹¡£

Ä̾ï²Á³Ê¤è¤ê3,300±ß¤ªÆÀ¤Ê¥»¥Ã¥È¤Ç¤¹¡£

¡ãÉÕ°ÉÊ¡¿»ÅÍÍ¡ä
1.ËÜÂÎ
2.¥Õ¥¿1Ëç¡¿MDF¹çÈÄ
3.¹â¤µÄ´À°¥ì¥ó¥¬4¸Ä
4.£Ì¥Ï¥ó¥¬¡¼¡¢¥Á¥§¡¼¥ó¡¢¥Õ¥Ã¥¯
5.¶ú¾Æ¤­¥¹¥¿¥ó¥É1Âæ¡¿¥¹¥Æ¥ó¥ì¥¹À½ SUS-304(18-8)
6.Ãݶú100ËÜ¡¿Ä¹¤µ24cm ľ·Â3mm
7.¾Æ¤­ÌÖ32cm¡ß32cm1Ëç¡¿Å´À½¥¯¥í¡¼¥à¥á¥Ã¥­
¢¨±¿ÈÂÍÑÃʥܡ¼¥ëÈ¢Æþ¤ê (¥Ù¥ë¥ÈÉÕ¤­)

¢¨ ÌÚ³¥ ¤ÏÆÃ¤ËɬÍפ¢¤ê¤Þ¤»¤ó¤¬¡¢Ìý±ø¤ì¤òËɤ°¤¿¤á
Çö¤¯Éߤ¤¤Æ¤¤¤¿¤À¤¯¤³¤È¤â¤Ç¤­¤Þ¤¹¡£

Çä¤êÀÚ¤ì¤Þ¤·¤¿¡£
¤ªÆÏ¤±¤Ï1·îÃæ½Ü¤Ë¤Ê¤ê¤Þ¤¹¡£
¤´Í½Ì󾵤êÃæ¡£

49,800±ß (Àǹþ¤ß¡¦Á÷ÎÁÊÌ)


¡¡CR-4646T
¡¡¡¡¡¡¡¡¡¡¡¡¡¡¡¡¡¡¡¡CHIRORI/4646

¢¨¥ì¥ó¥¬¤Î¿§¤Ï¤³¤Î¼Ì¿¿¤Î¤è¤¦¤Ë¥°¥ì¡¼¿§¤ËÊѤï¤Ã¤Æ¤¤¤Þ¤¹

¡ãÉÕ°ÉÊ¡¿»ÅÍÍ¡ä
1.ËÜÂÎ
2.¥Õ¥¿1Ëç¡¿MDF¹çÈÄ
3.¹â¤µÄ´À°¥ì¥ó¥¬4¸Ä
¢¨±¿ÈÂÍÑÃʥܡ¼¥ëÈ¢Æþ¤ê (¥Ù¥ë¥ÈÉÕ¤­)

¢¨ ÌÚ³¥ ¤ÏÆÃ¤ËɬÍפ¢¤ê¤Þ¤»¤ó¤¬¡¢Ìý±ø¤ì¤òËɤ°¤¿¤á
Çö¤¯Éߤ¤¤Æ¤¤¤¿¤À¤¯¤³¤È¤â¤Ç¤­¤Þ¤¹¡£

Çä¤êÀÚ¤ì¤Þ¤·¤¿¡£
¤ªÆÏ¤±¤ÏǯËö¤Ë¤Ê¤ê¤Þ¤¹¡£
¤´Í½Ì󾵤êÃæ¡£

44,800±ß (Àǹþ¤ß¡¦Á÷ÎÁÊÌ)

´ØÏ¢¾¦ÉÊ



JL-500
46¼«ºßîì L·¿ : ¤¸¤¶¤¤¤«¤®

L·¿¥Ï¥ó¥¬¡¼¡§¥Ï¥ó¥¬¡¼Á´Ä¹50cm
¥Á¥§¡¼¥ó¡§¾ÆÉÕÅÉÁõ/ÂÑÇ®600ÅÙ
¥Ü¥ë¥È¡¦¥Ê¥Ã¥ÈÉÕ°
¡ãÆüËÜÀ½¡ä

3,900±ß (Àǹþ¤ß¡¦Á÷ÎÁÊÌ)

CG-100
¥¹¥Æ¥ó¥ì¥¹¸ÞÆÁ

CHIRORI¤Ç»È¤¦¾®¤µ¤Ê¸ÞÆÁ¡£

Éý¡§10cm
±ü¹Ô¡§10cm
¹â¤µ¡§7cm
6mm¸ü¥¹¥Æ¥ó¥ì¥¹¡§SUS304(18-8)

4,300±ß (Àǹþ¤ß¡¦Á÷ÎÁÊÌ)

KYS-06
46¶ú¥Ô¥¿()

¥¹¥Æ¥ó¥ì¥¹À½
TK-24 Ãݶú100ËÜÉÕ¤­

¡úËÜÉʤÏÅöʤ¬¹©¶È½êÍ­¸¢¤òÍ­¤·¤Æ¤¤¤Þ¤¹¡£

3,100±ß (Àǹþ¤ß¡¦Á÷ÎÁÊÌ)

TK-24
Ãݶú100ËÜ

¶ú¾Æ¤­¥¹¥¿¥ó¥É¤ËÉÕ°¤ÎÃݶú¡£

Ťµ¡§24cm
ÂÀ¤µ¡§3mm
¡¡¡¡¡¡100ËÜ

300±ß (Àǹþ¤ß¡¦Á÷ÎÁÊÌ)

SH-01
¥µ¡¼¥¯¥ë¥Ï¥ó¥¬¡¼

ɸ½à¥µ¥¤¥º¤Î¥·¥§¥é¥«¥Ã¥×(ľ·Â12cm)¤ä
¥Þ¥Ã¥³¥ê¥«¥Ã¥×(ľ·Â12cm)¡¢
0.5¹ç±©³ø¤Ê¤É¤¬»È¤¨¤ë¥Ï¥ó¥¬¡¼¤Ç¤¹¡£
¢¨¤´Ãí°Õ
»ÈÍѤ¹¤ë´ï¤ò·¹¤±¤Æ¤âÍî²¼¤·¤Ê¤¤¤«¡¢°ÂÁ´¤ò¤´³Îǧ¤Î¾å¤´»ÈÍѤ¯¤À¤µ¤¤¡£

¥µ¡¼¥¯¥ëÆâ·Â¡§110mm¤Û¤É
Å´À½(SS400)9mm·Â ÂÑÇ®ÅÉÁõ
ÃÇÇ®¥ì¥ó¥¬(dzÎÁ¤Î¹â¤µÄ´À°ÍÑ)¡§158mm¡ß114mm¡ß30mm

2,900±ß (Àǹþ¤ß¡¦Á÷ÎÁÊÌ)

ET-300
ÌÚúÃå²Ð±ìÆÍ

¶¯ÎÏ¡ª±ìÆÍÃå²Ð¡ª
Á÷É÷¤Ê¤·¤Ç³Ú¡¹Ãå²Ð
±ìÆÍ¡¢ÊݸîÂæ¡¢¸Ç·ÁdzÎÁ¡Ê¥«¥¨¥ó10¸Ä¡Ë¤Î3ÅÀ¥»¥Ã¥È¤Ç¤¹¡£

¹â¤µ¡§Ìó30cm
Éý¡ÊĹÊÕ¡Ë¡§Ìó11.5cm
ÁǺࡧSUS304¡Ê18-8¡Ë
±ìÆÍ¡§0.5mm¸ü
ÊݸîÂæ¡§2.5mm¸ü

4,900±ß (Àǹþ¤ß¡¦Á÷ÎÁÊÌ)

AD-01
¤¢¤ß¥¹¥¿¥ó¥É

Ì֤ȼõ¤±¶ñ¤Î¥»¥Ã¥È¡£
¼õ¤±¶ñ
Éý¡§19cm
±ü¹Ô¡§13.2cm
¹â¤µ¡§4.1cm
2mm¸ü¥¹¥Æ¥ó¥ì¥¹¡§SUS304¡Ê18-8¡Ë

ÌÖ
Éý¡§20cm
±ü¹Ô¡§12cm
¥¹¥Á¡¼¥ë¡¢¥¯¥í¥à¥á¥Ã¥­À½

3,400±ß (Àǹþ¤ß¡¦Á÷ÎÁÊÌ)

AMI-W200
¤¢¤ß¥¹¥¿¥ó¥ÉÍѤÎÌÖ

¤¢¤ß¥¹¥¿¥ó¥É¡¢¸ò´¹ÍѤÎÌÖ¡£
¤¢¤ß¥¹¥¿¥ó¥É¤ËÉÕ°¤ÎÌÖ¤ÈÆ±¤¸¤â¤Î¡£

ºà¼Á¡§¥¹¥Á¡¼¥ë¡¡¥¯¥í¥à¥á¥Ã¥­À½

750±ß (Àǹþ¤ß¡¦Á÷ÎÁÊÌ)

SAMI-320K
¥¹¥Æ¥ó¥ì¥¹¾Æ¤­ÌÖ¡¡³Ñ·Á32cm

¥µ¥Ó¤Ë¤¯¤¯´è¾æ¤Ê¥¹¥Æ¥ó¥ì¥¹Ì֤κǹâµéÉʤǤ¹¡£

³Ñ·Á¡¡32cm¡ß32cm
¥¹¥Æ¥ó¥ì¥¹À½

4,400±ß (Àǹþ¤ß¡¦Á÷ÎÁÊÌ)

AMI-320K
¾Æ¤­ÌÖ¡¡32cm³Ñ

¸ò´¹ÍѾƤ­ÌÖ¡£ÉÕ°¤Î¾Æ¤­ÌÖ¤ÈÆ±¤¸¤â¤Î¡£

³Ñ·Á¡¡32cm¡ß32cm
¥¹¥Á¡¼¥ë
¥¯¥í¥à¥á¥Ã¥­

1,300±ß (Àǹþ¤ß¡¦Á÷ÎÁÊÌ)

IH-2020
°Ïϧ΢²Ð¾Ã¤·/2020

¤«¤Ö¤»¤ë¤À¤±¡¢ÊØÍø¤Ê²Ð¾Ã¤·

¡¡¡¡¡¡½Ä¡§20cm
¡¡¡¡¡¡²£¡§20cm
ËÜÂι⤵¡§10cm¡¡(¼è¼ê¤Þ¤Ç¤Î¹â¤µ17cm)
¥¹¥Æ¥ó¥ì¥¹À½
¡ãÆüËÜÀ½¡ä
¾ÜºÙ¤Ï¤³¤Á¤é

18,800±ß (Àǹþ¤ß¡¦Á÷ÎÁÊÌ)

DR-4646
CHIRORI/4646ÍѸò´¹ÍÑÃÇÇ®¥ì¥ó¥¬

¸ò´¹ÍÑÃÇÇ®¥ì¥ó¥¬8Ëç

ÃÇÇ®¥ì¥ó¥¬¤¬·ç¤±¤¿¤êÇö¤¯¤Ê¤Ã¤¿¤ê¤¹¤ë¤È¡¢ÃÇÇ®¸ú²Ì¤¬¤Ê¤¯¤Ê¤ê¤Þ¤¹¤Î¤Ç¸ò´¹¤ò¤ª´ê¤¤¤·¤Þ¤¹¡£
¢¨ÁêÅö¤Ê²ó¿ô¤´»ÈÍѤ¤¤¿¤À¤±¤Þ¤¹¤Î¤Ç°ìÈ̲ÈÄí¤Ç¤Î¼è¤ê´¹¤¨¤ÏÉÔÍפʻö¤¬Â¿¤¤¤Ç¤¹¡£
CHIRORI/4646 ÀìÍÑÉʤǤ¹
Ʊ¥µ¥¤¥º¤Î¥ì¥ó¥¬¤ËÆþ¤ìÂØ¤¨¤ë¤À¤±¤Ç¡¢´Êñ¤Ë¸ò´¹¤Ç¤­¤Þ¤¹¡£
¡ãÆüËÜÀ½¡ä

5,500±ß (Àǹþ¤ß¡¦Á÷ÎÁÊÌ)

AT-01
¤¢¤ß¤Ä¤«¤ß

¾Æ¤­ÌÖ¤ò»ý¤Á¾å¤²¤ë¤Î¤ËÊØÍø

¼·ÎØËÜÊÞ¤¬³«È¯¤·¤¿¤¢¤ß¤Ä¤«¤ß¤Ç¤¹¡£
¤È¤Æ¤âÊØÍø¤Ç¤¹¤Î¤Ç¡¢¤¼¤Ò¤É¤¦¤¾¡ª

Ťµ¡§Ìó20cm
ľ·Â5mm¤ÎÂÀ¼´¥¹¥Æ¥ó¥ì¥¹À½

600±ß (Àǹþ¤ß¡¦Á÷ÎÁÊÌ)

MB-01
ÌÚ³¥1L (¥Ü¥È¥ëÆþ¤ê)

ÃÇÇ®¥ì¥ó¥¬¤Î±ø¤ìËɻߤˡ£

¥Ü¥È¥ë1ËܤÇÄ̾ï10²ó°Ê¾å»È¤¨¤Þ¤¹¡£
¥ì¥ó¥¬¤Î¾å¤ËÉߤ¯¤ÈÌý±ø¤ì¤òµÛ¼ý¤·¡¢¥ì¥ó¥¬¤¬±ø¤ì¤Ë¤¯¤¯¤Ê¤ê¤Þ¤¹¡£

800±ß (Àǹþ¤ß¡¦Á÷ÎÁÊÌ)

µª½£È÷Ĺú

ÆÃÁª¥¦¥Ð¥á¥¬¥·¡¡5kg,15kg
Ťµ5¡Á13cmÄøÅÙ¡¢·Á¾õ¤Ï¤µ¤Þ¤¶¤Þ¡£
ȯÇ䤫¤é20ǯ°Ê¾å³¤¯¥í¥ó¥°¥»¥é¡¼ÉʤǤ¹¡£

ºÙÈ÷ 2kg,5kg
Ťµ5¡Á10cmÄøÅÙ¡¢Ä¾·Â15mmÁ°¸å
¾¯Î̤Ǥâ¹â²ÐÎϤʥª¥ê¥¸¥Ê¥ëʬÎàÉʤǤ¹¡£









SHOPPING GUIDE

ÇÛÁ÷¡¦Á÷ÎÁ¤Ë¤Ä¤¤¤Æ

¤æ¤¦¥Ñ¥Ã¥¯
¾¦ÉÊÅÀ¿ô¤äÂ礭¤µ¤Ë¤«¤«¤ï¤é¤º¡¢ ¤ªÆÏ¤±Àè1¥«½ê¤Ë¤Ä¤­Ëܽ£¡ï1,200¡ÊÀǹþ¡Ë¡¢Ë̳¤Æ»¡¦²­Æì¡ï1,800¡ÊÀǹþ¡Ë¤Ç¤¹¡£

Âç·¿À½ÉÊ¡¦Âç½ÅÎÌÀ½Éʤϥȥʥ߱¿Í¢¡¢º´ÀîµÞÊØÂ¾¤Ë¤Æ¤ªÆÏ¤±¤¹¤ë¤³¤È¤¬¤´¤¶¤¤¤Þ¤¹¡£
±¿Á÷¶È¼Ô¤µ¤ó¤Î¤´»ØÄê¤Ï¤¤¤¿¤À¤±¤Þ¤»¤ó¡£
¤æ¤¦¥Ñ¥±¥Ã¥È
¶ú¥Ô¥¿¡¢Ãݶú¤Î¤ß¤Î¹ØÆþ»þ¤Ë¤Î¤ß¤´ÁªÂò¤¤¤¿¤À¤±¤Þ¤¹¡£
¡Ö¤æ¤¦¥Ñ¥±¥Ã¥È¡×¤Ë¤è¤ë¥Ý¥¹¥ÈÅêÈ¡¤Ë¤Ê¤ê¤Þ¤¹¡£¥Ý¥¹¥È¤Î¸ý¤Ï24­Ñ¡ß£³­Ñ°Ê¾åɬÍפǤ¹¡£
¤ªÆÏ¤±Æü»þ¤Î¤´»ØÄê¤Ï¤¤¤¿¤À¤±¤Þ¤»¤ó¡£
¥Ý¥¹¥È¤Î¸ý¤¬¾®¤µ¤¯Æþ¤é¤Ê¤¤¾ì¹ç¤Ï¡¢ÉÔºßɼÄÌÃΤȤʤê¤Þ¤¹¡£¢¨ÃÖ¤­ÇÛÅÐÏ¿¼Ô°Ê³°¤ÏÃÖ¤­ÇÛ¤µ¤ì¤Þ¤»¤ó¡£

ÊÖÉʤˤĤ¤¤Æ

ÉÔÎÉÉÊ
Ãåʧ¤¤¤Ç¤´ÊÖÉʸ塢ÎÉÉʤȸò´¹¡Ê¾¦ÉÊÅþÃå¸å7Æü°ÊÆâ¡Ë
¢¨¤ªµÒÍͤÎÅÔ¹ç¤Ë¤è¤ëÊÖÉʤξܺ٤ϾåÉô¥Ð¥Ê¡¼¤Î¡Ú¤ªÇ㤤ʪ¥¬¥¤¥É¡Û¤ò¤´Í÷¤¯¤À¤µ¤¤¡£
ÊÖÉÊ´ü¸Â
ÉÔÎÉÉʤÎÊÖÉÊ´ü¸Â¤Ï¾¦ÉÊÅþÃå¸å£·Æü°ÊÆâ¤È¤µ¤»¤Æ¤¤¤¿¤À¤­¤Þ¤¹¡£

¡Ú¶ú¥Ô¥¿ÀìÍÑ¥µ¥¤¥È¡Û¤Î¤´ÊÖÉÊ¡¦¥­¥ã¥ó¥»¥ë
¤ªµÒÍͤÎÅÔ¹ç¤Ë¤è¤ë¤´ÊÖÉÊ¡¢·èºÑ´°Î»¸å¤Î¥­¥ã¥ó¥»¥ë¡¢ÃíʸÆâÍÆ¤ÎÊѹ¹¤Ï¤ª¼õ¤±¤·¤Æ¤ª¤ê¤Þ¤»¤ó¡£
ÊÖÉÊÁ÷ÎÁ
ÉÔÎÉÉʤ˳ºÅö¤¹¤ë¾ì¹ç¤ÏÅöÊý¤ÇÉéô¤¤¤¿¤·¤Þ¤¹¡£

¤ª»Ùʧ¤¤¤Ë¤Ä¤¤¤Æ

Amazon Pay
¥¯¥ì¥¸¥Ã¥È¥«¡¼¥É
¥«¡¼¥É·èºÑ¤Ï¡Ö¥¼¥¦¥¹·èºÑ¥·¥¹¥Æ¥à¡×¤Ø¤Î¶È̳°ÑÂ÷¤Ë¤è¤ê¹Ô¤¤¤Þ¤¹¡£
https://www.cardservice.co.jp/zeuscardpayment.html
Âå¶â°ú´¹¡Ê¤æ¤¦¥Ñ¥Ã¥¯¡Ë
¶ä¹Ô¿¶¹þ¡ÊÀèʧ¤¤¡Ë
¤´Ãíʸ¤Î¸å¤Ë¿¶¤ê¹þ¤ß¸ýºÂ¤ò¥á¡¼¥ë¤Ë¤Æ¤´°ÆÆâ¤¤¤¿¤·¤Þ¤¹¡£